HORN IMMOBILIEN++ 15 km bis Neubrandenburg, schöne Doppelhaushälfte mit großen Grundstück & 2 Garagen
Objektart
Adresse
Objektdaten
Informationen
Ausstattung
Details
Nur 15 km von Neubrandenburg entfernt steht diese Doppelhaushälfte (zwischen Neubrandenburg und Friedland). Auf einem großzügigen Grundstück von ca. 1.329 m² gelegen, ist dieses massiv gebaute Haus ideal für Familien oder Paare, die eine ruhige Lage und kurze Wege zur nächsten Stadt schätzen.
Im Erdgeschosse befindet sich die Küche mit Einbauküche und dem Zugang zu einem Schlafzimmer. Das Badezimmer (im EG) wurde 2011 modernisiert und hat neben einer bodentiefen Dusche auch Platz für eine Waschmaschine. Ein zweites Schlafzimmer befindet sich ebenfalls noch im Erdgeschoss.
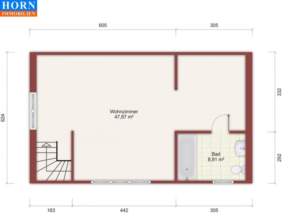
Das Dachgeschoss hat ein großes Wohnzimmer (ca. 47 m² ), den Zugang zum Spitzboden und auch ein Badezimmer (mit Badewanne). Auf dem großen Grundstück befinden sich 2 Garagen und Nebengelass sowie abgetrennte Bereiche für Kleintierhaltung. Am Ende des Grundstückes haben Sie einen unverbauten weiten Blick in das Datzetal.
Und denken Sie daran:
Sie kaufen nicht nur ein Haus, Sie kaufen den für Sie, schönsten und wichtigsten Platz auf der Welt, Ihr Zuhause.
In diesem Sinne rufen Sie mich an und vereinbaren Sie einen Besichtigungstermin!
Telefon 0395-5 70 66 69
Nutzen Sie diese Chance!
Modernisierungen:
- 2022 Heizung (Kessel & Brenner)
- 2021 Küchengeräte (Spülmaschine & Herd) Firma Siemens
- 2011 Badezimmer im EG
Ausstattung:
- Hauseingangstür aus einbruchsicheren Glas
- teilweise Fensterrollladen
- Einbauküche
- 2 Garagen
- Hobbyraum
- Plissees
Entsprechend dem Baujahr sind aber auch weitere Modernisierungsarbeiten notwendig. Vor dem Kauf einer gebrauchten Immobilie empfehlen wir generell den Rat eines Bausachverständigen.
Die Grundrisse erhalten Sie, wenn Sie das Exposé auf unserer Homepage anfordern. Die vorhandenen Grundrisse dienen lediglich zur Orientierung, es sind keine Bauzeichnungen oder technische Grundrisse, die Maße sind alle selbst gemessene Innenmaße. Die eingezeichneten Ausstattungsgegenstände sind fiktiv und stimmen nicht mit der Wirklichkeit überein. Für eventuelle Fehler oder Abweichungen wird keine Haftung übernommen.
Der Ort Bassow liegt im Datzetal zwischen den Städten Neubrandenburg und Friedland. Neubrandenburg ist eine Kreisstadt und die 3. größte Stadt in Mecklenburg-Vorpommern mit ca. 60.000 Einwohnern.
- ca. 10 km bis Friedland
- ca. 15 km bis Neubrandenburg
- ca. 2 km zur Autobahnauffahrt Glienke
- ca. 140 km bis Berlin
- ca. 85 km Ahlbeck auf Usedom
Alle unsere Immobilienangebote erscheinen immer zuerst auf unserer eigenen Homepage
www.horn-immo.de
Hier befinden sich über 90 Angebote aus unserer Region. Auf allen anderen Portalen werden diese Angebote erst einige Tage später zu finden sein.
Diese Immobilie wird so angeboten, dass kein Maklervertrag mit dem Kaufinteressenten abgeschlossen wird. Die Vergütung bei der Vermittlung dieser Immobilie trägt ausschließlich der Verkäufer. Der Immobilienmakler ist der alleinige Interessenvertreter des Verkäufers und vereinbart mit dem Kaufinteressenten weder eine Vergütung, noch wird ein Maklervertrag abgeschlossen. Auch durch die Vereinbarung eines Besichtigungstermins oder die Übermittlung von Unterlagen sowie die Entgegennahme eines Kaufpreisangebots kommt kein Maklervertrag mit dem Kaufinteressenten zustande. Der angegebene Kaufpreis ist der derzeitige Angebotspreis. Wir weisen darauf hin, dass dieser Angebotspreis bei erheblicher Nachfrage nach Objekten der hier angebotenen Art auch steigen kann. Bis zum Notarvertrag ist ein Zwischenverkauf jederzeit möglich! Die hier gemachten Angaben zur Immobilie beziehen sich auf Angaben des Eigentümers, die Firma HORN IMMOBILIEN GmbH kann dafür keine Haftung übernehmen. Weitere Immobilienangebote finden Sie unter: www.horn-immo.de
WICHTIGER HINWEIS: Bitte haben Sie Verständnis dafür, dass wir, auch und vor allem zum Schutze der Verkäufer, keine unvollständigen/ anonymen Anfragen beantworten werden. (Name, Vorname - Straße, Hausnummer - Postleitzahl, Ort - Telefonnummer) Verbraucherinformation: Wir sind nicht bereit und nicht verpflichtet, außer an dem Verfahren der IVD Ombudsstelle an einem Verbraucherstreitbeilegungsverfahren teilzunehmen. Die IVD Ombudsstelle erreichen Sie unter Ombudsmann Immobilien IVD/VPB - Grunderwerb und Verwaltung, Littenstr. 10, 10179 Berlin, 10179 Berlin, E-Mail: info@ombudsmann-immobilien.de.
Gemäß der EU-DSGVO sind wir verpflichtet, Sie über die Verarbeitung Ihrer Daten zu informieren. Sie finden unser Transparenz- und Informationspflichten auf folgenden Link: https://horn-immo.de/datenschutzerklaerung.html
Wir fallen nicht unter das Barrierefreiheitsstärkungsgesetz.
Möchten auch Sie Ihr Haus oder Ihre Wohnung verkaufen? Anruf genügt! Wir garantieren gute Fotos, gute Internetauftritte, virtuelle 360 Grad Rundgänge und auf Wunsch auch Immobilienvideos!
Ansprechpartner
Energieausweis (Verbrauchsausweis)
161,70 kWh / (m²*a) Energieverbrauchskennwert
161,70 kWh / (m²*a) Energieverbrauchskennwert
161,70 kWh / (m²*a) Energieverbrauchskennwert
161,70 kWh / (m²*a) Energieverbrauchskennwert
161,70 kWh / (m²*a) Energieverbrauchskennwert Weitere Informationen
| Wesentlicher Energieträger | Öl |
| Energieausweis gültig bis | 2036-03-30 |
| Energieausweis Jahrgang | ab dem 1.5.2014 |
| Energieausweis Werteklasse | F |
| Energieausweis Baujahr | 1900 |
| Energieausweis Gebäudeart | Wohngebäude |
| Heizung | Zentralheizung |
| Befeuerung | Öl |
